БЕРЕГ

Новосибирск – БЕРЕГ – Приватна башта – Површина: 1000 м² – Јун 2022

Новосибирск – БЕРЕГ – Приватна башта – Површина: 1000 м² – Јун 2022

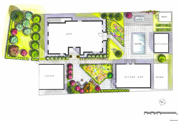
Клијенти поседују овај плац већ неколико година. За то време изградили су двоспратну кућу, сауну, летњу терасу са роштиљем, гаражу, базен и стакленик. Сви објекти, као и поплочане стазе, заузимају половину плаца. Две слободне зоне остају доступне за травњак и засаде. Клијенти су захтевали да се направи башта која захтева мало одржавања, са простором за седење поред огњишта, као и малим повртњаком. Испред плаца налази се парцела од 150 м² која не припада клијентима. Међутим, они планирају да тамо посаде дрвеће и жбуње како би створили зелени екран који ће штитити башту од пута.

Предложио сам три концептуалне опције за плац. Клијенти су изабрали опцију са ограниченом зоном засада. Стакленик и неколико повртњака премештени су у најудаљенији угао иза терасе. Дрвени подијум са великом љуљашком у средини заузимао је много простора и деловао је веома празно и доминантно у овом делу плаца. Предложено је да се ублажи са засадима и да се користи као сцена за прелепо дрво са занимљивом лишћем, посађено у отвор направљен у подијуму. Извијени бор би био одличан фокусни елемент. Lonicera caprifolium, која прекрива ограду иза, обезбеђује и ограђивање, као и богате боје и деликатну арому цветова. Простор између куће и базена остављен је за травњак. Засади овде су ограничени на Juniperus squamata, блиставе Spirea japonica, црну зову, златне Calamagrostis acutiflora и хортензије посађене уз кућу.

На западној страни баште, простор је подељен на правоугаоне блокове са биљкама различитих величина, облика и текстура. Густа неформална садња прикрива и ублажава уредан распоред. Жбуновите руже и божури посађени су заједно са Nepeta и Geranium Rosana, пружајући интерес током целе сезоне. Цветна гредица је повезана са засадима у сеновитом делу код ограде са једноставним дрвеним луком прекривеним пењачицама и клематисима. Услови полусенке испод жбуња су веома погодни за анемоне и издржљиве гераније. Мешавина нијанси зелене и винских боја хоста и хеухера нуди шарену позадину за веће биљке. Жива ограда од Philadelphus coronarius и Rosa rugosa обезбеђује меку структуру у простору, стварајући угодан кутак за мирни тренутак одмора у башти. Са супротне стране уређен је простор за окупљање породице у близини преносивог огњишта.